Property Details
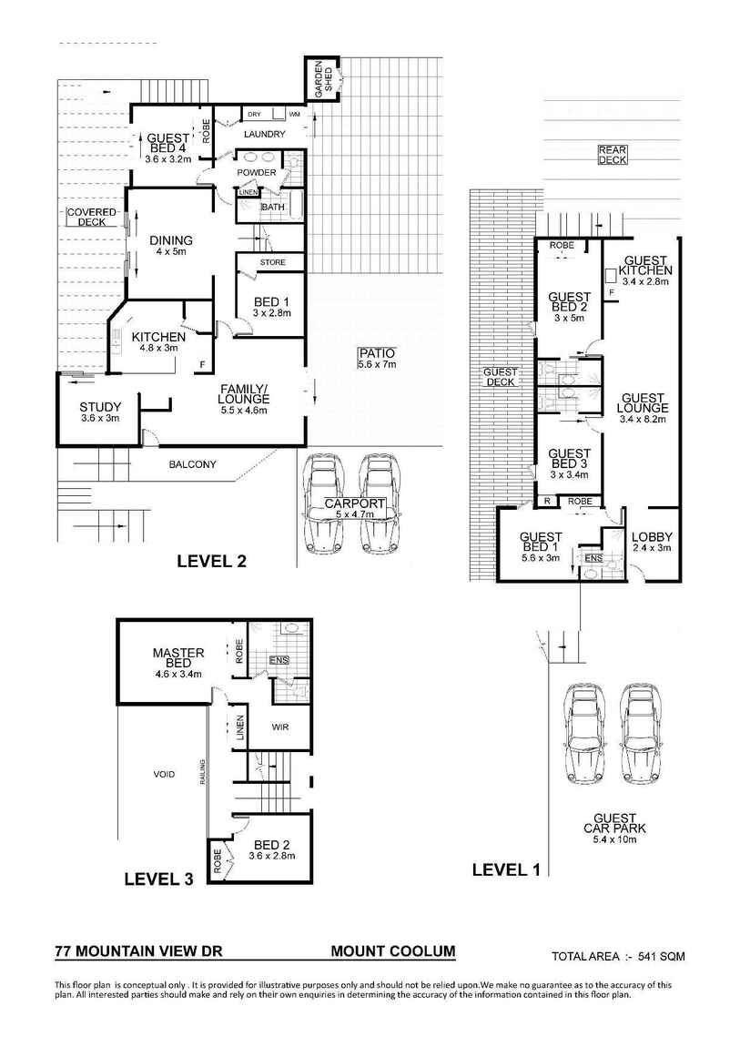
7 bedrooms, 5 bathrooms and 5 car spaces. Yes, you are reading correctly.
Here is a rare find for those buyers searching for a property with enough bedrooms and bathrooms for true dual occupancy potential or super easy airBNB income.
Equally a rare find for expanding families, blended families or multi-generational families who desire to live under the one roof.
Welcome to 77 Mountain View Drive in the foothills of Mount Coolum proudly marketed by Mark Lawler of Richardson & Wrench Real Estate.
The property was originally designed as a traditional bed & breakfast with 3 bedrooms on the lower level each with their own ensuite bathroom and each opening onto a spacious common lounge room, a kitchenette and an outdoor timber deck.
With the explosion in popularity of airBNB over the past few years this totally self contained lower level with its 3 bedrooms, 3 bathrooms and 3 guest car spaces represents exciting income potential for the new owners whenever desired.
An alternative is to convert the entire lower level into a generous sized, self contained flat with 3 bedrooms and 3 bathrooms. Now that is exciting. Way more than your average granny flat. Not a week goes by without a buyer asking me for a dual occupancy property says Mark
The slope of the 1,126m2 block of land allows Level 2 of the home to be at ground level on the whole Eastern side. This means a double carport and front door entrance into the remainder of the home which consists of 4 bedrooms and 2 bathrooms built over 2 levels.
Now you may think a 7 bedroom home sacrifices living and entertaining spaces, however nothing could be further from the truth. The home has multiple living areas both indoors and outdoors including wide timber decks and a paved garden courtyard.
Here are some extra features at a glance;
Quality timber kitchen with 2 dining rooms
Master bedroom with ensuite bathroom
Major renovations completed in 2012
French doors opening to deck
Internal glass balustrades
Elevated location with sea breezes.
Private garden with utility shed
Spectacular hinterland views
Quarter of an acre block of land
Surrounded by native flora and fauna
Close to beaches, cafes, shops and restaurants
Come on up to the best kept secret in Mount Coolum. A private place of relaxation in glorious natural surroundings. Sitting pretty high on a hill where the views are a priceless bonus.
Call Mark Lawler today on 0423 766 713 to arrange a time to view.
Land area
1126 sqm (approx)
























































